이론적 계산
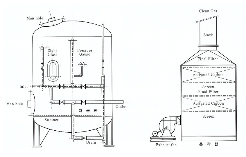
활성탄 탱크 및 집진기

활성탄 용량 계산
Q = A ×H |
Q : 활성탄 용량(㎥) H : 활성탄층 높이(m) |
※ 액상 흡착탑 : 지름과 높이 비율 (1:1 ~ 2) |
※ 기상 흡착탑 : 활성탄층 높이가 500mm이하(500mm가 넘을 때 흡착탑 2단 이상으로 설계, 압력손실 때문) |
접촉시간 계산
SV = LV/H | Q = A × LV | ※상수의 경우 | ※하수의 경우 | ※기상의 경우 |
SV : 공간속도(min-1) | Q : 유량(㎥/min) | LV : 10~20m/hr | LV : 5m/hr이하 | LV : 0.3m/s이하 |
LV : 선속도(m/min) | A : 표면적(㎡) | 접촉시간 : 10분~15분 | 접촉시간 : 20~40분 | 접촉시간 : 1초 이상 |
H : 높이(m) | LV : 선속도(m/min) |
활성탄 수명
※ 액상의 경우 | ※ 기상의 경우 | |
M = W/m | ![]() |
Q : 처리유량(㎥/hr) |
M : 필요한 활성탄 량(kg) | T = 가스온도(℃) | Cv : 용적기준 오염물질 농도(㎥/㎥) |
W : 제거할 오염물질 량(kg) | S = 활성탄의 흡착 추정량(Wt%) | M : 오염물질 분자량 |
m : 단위중량 활성탄이 흡착할 수 있는 피흡착물질의 량 | W : 활성탄 중량(kg) | ![]() |